Description
MESSIDOR // ALSEMBERGH // VANDERKINDEREN - 2 BEDROOMS FURNISHED + SOUTH FACING TERRACE + GARAGE
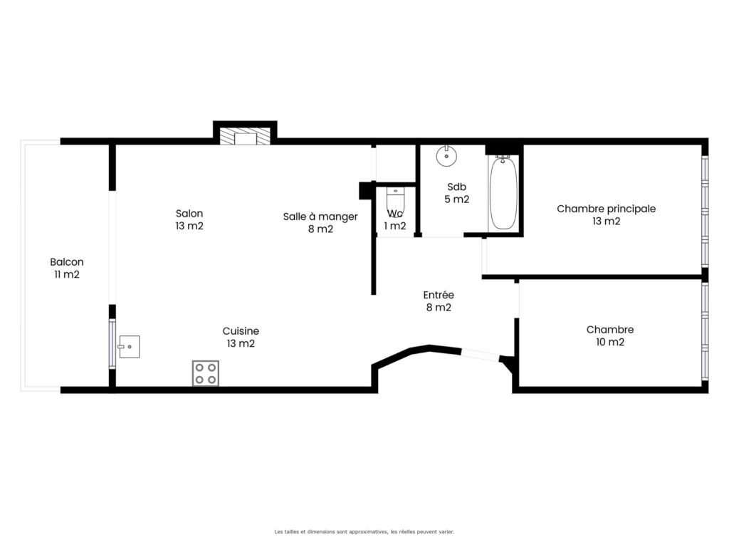
D.L.D properties offers you this exclusive flat fully furnished on the second floor (no lift) of a building with 8 flats. It is composed as follows: an entrance hall leading to a beautiful living area (34 m²) which is bright all afternoon (beautiful covered south-facing terrace), with a super-equipped U.S. kitchen, 2 bedrooms (13m2 and 10m2) facing east, 1 bathroom, a separate toilet, 1 small cellar. Miscellaneous: parquet flooring in the living room and mortex in the bedrooms, double glazing. Monthly charges: 185 eur (utilities, cold water, heating) EPC D+ / OPTION GARAGE BOX AT 150 eur. 1-YEAR LEASE MINIMUM - NOT FOR FLATMATE - Public transport 20 metres away, numerous shops 5 minutes' walk away - You'll love the location and the rear terrace overlooking the carré Tillens, a must-see! More info: +32(0)2.315.16.57 - INFO@dldproperties.be
Location
-
1190 , Rue Roosendael , Forest , Belgique
Address
More information
-
Number of floors4
-
Level (position)2
Details
-
Reference6269114
-
Price/month1,600 €
-
Availability01/11/2024
-
FurnishedYes
-
Bedroom(s)2
-
Bathroom(s)1
-
Individual shower room(s)0
-
Toilet(s)1
-
Year built1985
-
Exterior walls of the house2+
Espace extérieur
-
TerraceYes (11 m²)
-
Number of terrace1
Parking
-
External parkingYes
-
Internal parkingNo
-
GarageYes


