Description
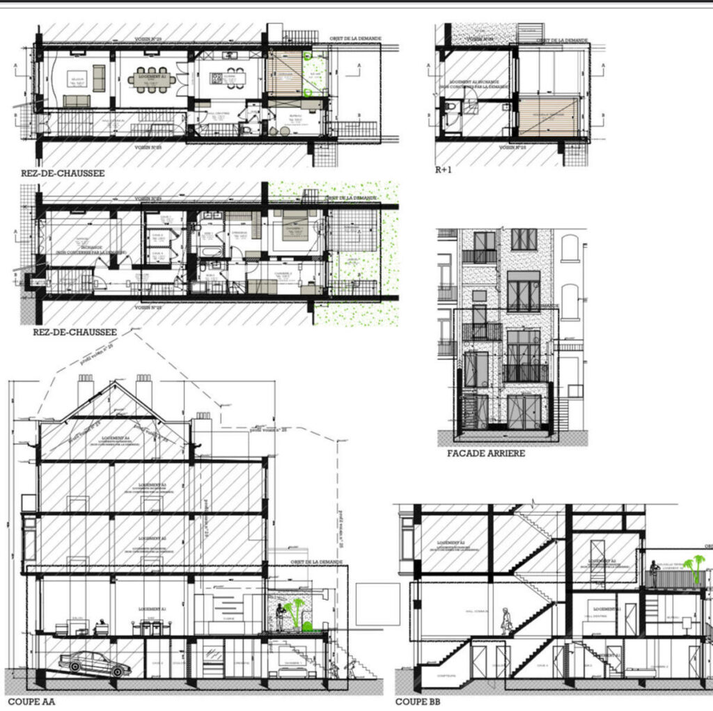
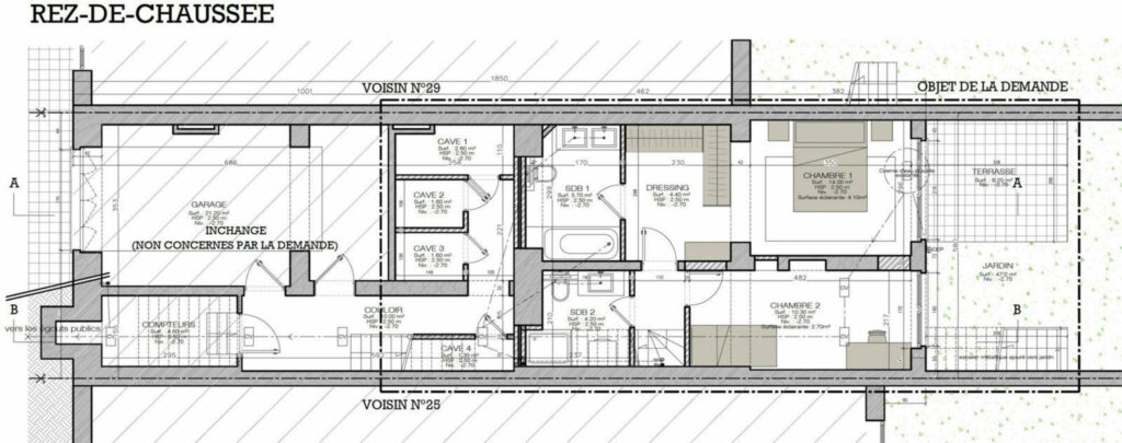
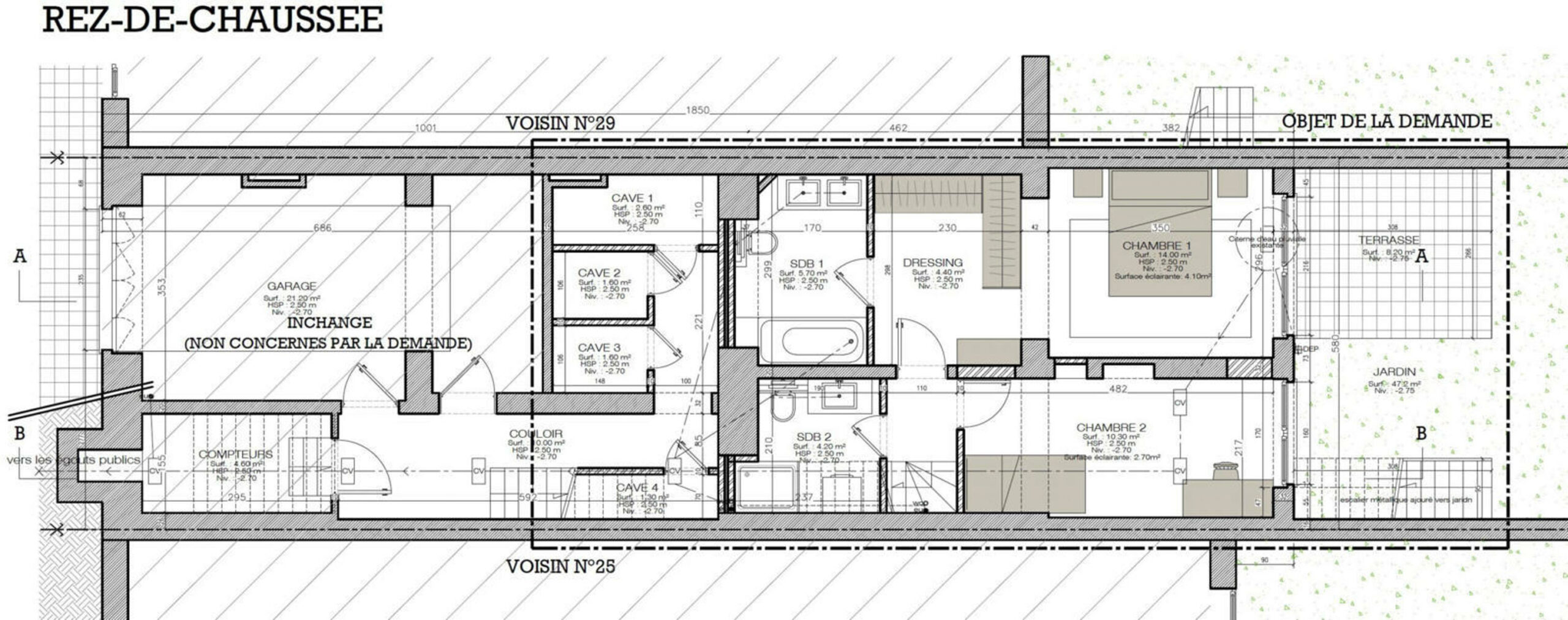
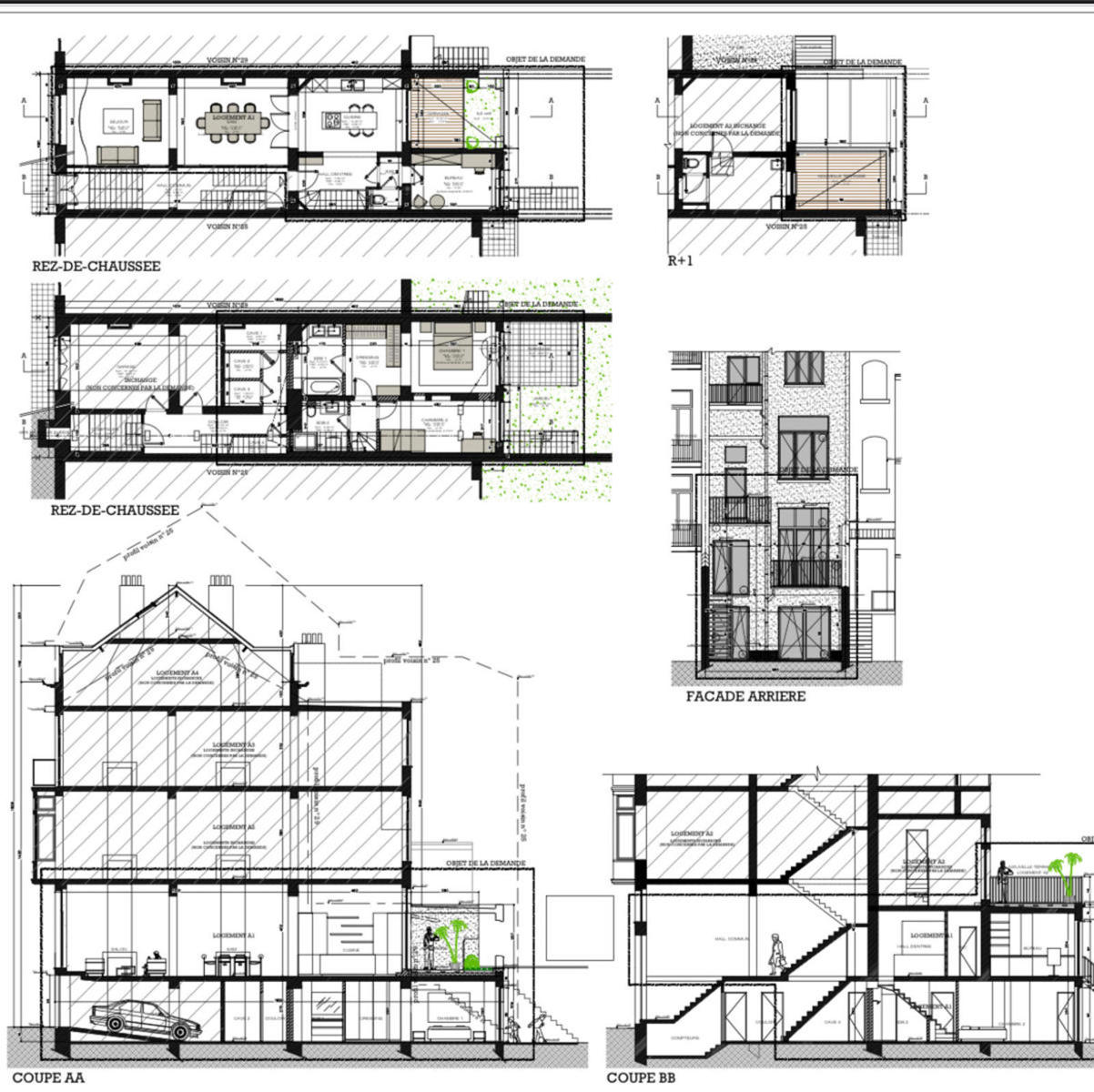
D.L.D properties vous propose ce superbe projet de duplex d'une superficie de +/- 126 m2 avec jardin +/- 50m2 à deux pas de la maison communale de St Gilles. Ce projet est vendu avec le permis d'urbanisme ! Situé à l'Avenue du Parc, ce bel étage d'époque (façade classée) dans une copropriété de 4 unités vous séduira pour son projet de rénovation. Trois belles pièces en enfilade afin de réaliser le salon, la salle à manger et la cuisine (belles hauteurs sous plafond 3,75m) avec accès à la terrasse supérieur (8m2) et son escalier donnant accès au jardin, un bureau (8m2), un wc, à réaliser un escalier donnant accès au sous sol. Au sous-sol (d'une superficie de +/- 50m2), vous pourrez réaliser deux chambres (14m2 - 10m2) avec deux salles de bains, un wc le tout donnant accès au jardin exposé nord ouest, une cave de +/- 2,50m2. Un garage est en option (50.000€) pouvant convenir à deux voitures (un véhicule garé devant le garage). Travaux de rénovation à charge de l'acquéreur. PEB G .Divers : toiture récente de la copropriété - électricité non conforme - faibles charges - libre à l'acte -Projet de réhabilitation de l'Avenue du Parc prévue pour 2024 (https://mobilite-mobiliteit.brussels/fr/projets/avenue-du-parc) mesures et données à titre indicatif et non contractuelles - Plus d'infos et visites au +32 2 315.16.57 ou [email protected].
Situation
-
1060 , Avenue du Parc , Saint-Gilles , Belgique
Adresse
Plus d'informations
-
Nombre d'étages4
-
Étage (position)1
Détails
-
Référence5224765
-
Prix390000 €
-
CategorieDuplex
-
État du bienà rénover
-
Façades2+
-
Chambres à coucher2
-
Salles de bains / Salles d'eau2
-
Type de cuisinenon-équipée
-
JardinOui
-
TerrasseOui
-
Nbre de terrasse(s)2
-
Orientation de la terrassenord-ouest
-
Parking extérieurOui
-
GarageOui
-
Nbre de toilette(s)2
-
Showerrooms (Salle de douche)1
-
Type de chauffagePas installé
-
Chauffage (ind/coll)individuel
-
Sdb (salle de bain)douche et bain assis
-
Année de construction1921
-
Exposition de la façade avantsud-est


